Marble's Info:
almarble@engin.umich.edu
C:  (734)657-7551

1501 Washtenaw


HOME

1501 Washtenaw Ave.
Floor Plan Layout
  
Basement
   First Floor
   Second Floor
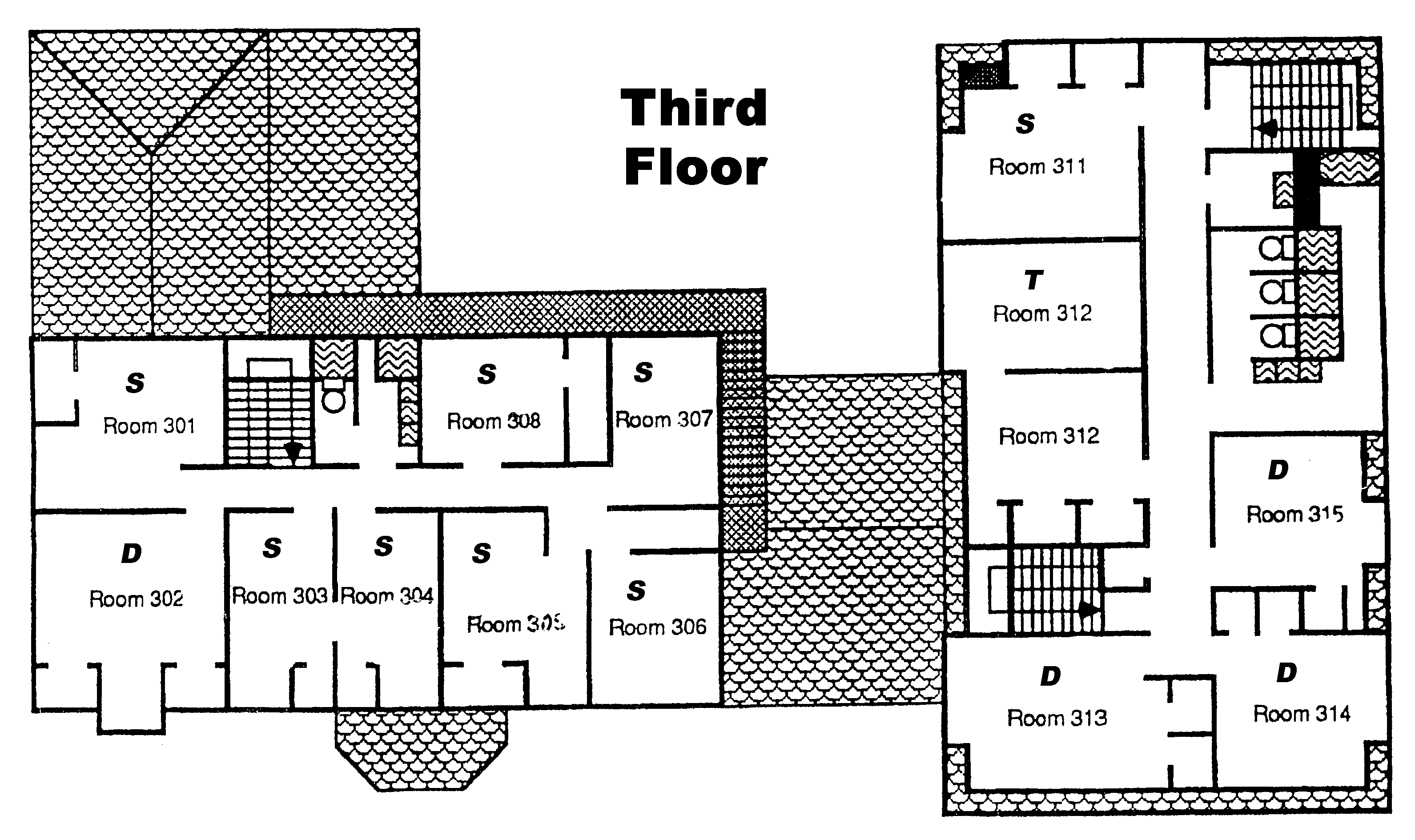
   Third Floor
Housing Points
Guidelines & Rules

If you want to see the best detail, right click on this picture and save it.  Then print it out.  It is only shown here at about 1/4 scale in order to fit in your browser.